• Farní stodola Hostivař

    • Bydlení
    • Historický kontext
    • Industriál/Průmysl
    • Interiér
    • Město
    • Rekonstrukce
    • Venkov
    • Veřejný prostor

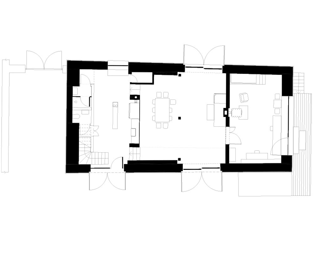
    Objekt stodoly je součástí farního areálu u kostela Stětí sv. Jana Křtitele v pražské Hostivaři. Hodnotné území, jehož část je kulturní památkou, se nachází v těžišti původní historické obce. Urbánní struktura i měřítko zástavby jsou zde zachovány v autentické podobě. Původně klasicistní hospodářské stavení se sedlovou střechou pochází z počátku 19. století. V roce 1876 bylo zasaženo požárem a v 70. letech 20. století přestavěno na autodílnu.

    Hlavní hodnota v podobě objemu a obrysu domu byla plně ponechána. Návrh reaguje na požadavek investora – zřídit prostor k setkávání komunity i veřejnosti. Hlavní vstup a velký zasklený portál zakončují primární osu areálu. Původně trojtraktová dispozice byla uvolněna pro nové využití. V přízemí stodoly se nachází společenský sál a vstupní lobby, kolem kterého jsou navázány prostory zázemí. Dělicí stěny jsou nahrazeny hmotou schodiště s průsvitným opláštěním. Vertikální objem slouží k propojení podlaží a zároveň odděluje sál od lobby. V podkroví domu vzniklo prosté ubytovaní v podobě tří apartmánů se zázemím. Ty doplňuje kancelář správce areálu. Dispozice podkroví obsluhuje podélná chodba. Přístup k ní umožňuje nově vybudované vnější schodiště přiléhající ke štítové stěně stodoly. V pomyslném středu podlaží vzniká převýšený prostor s galerií s kuchyní.

  • Radniční sklípek

    • Historický kontext
    • Interiér
    • Město
    • Rekonstrukce
    • Veřejný prostor

    Spojili své síly.

    V historii severočeského kraje i v historii radnice se rok 2014 zapsal tučně. A šťastně. A to díky jednoduchému principu spolupráce patrioticky smýšlející firmy a krajského města. Díky spolupráci pravých partnerů.

    Vedení města Liberce (1352) a Pivovar Svijany (1564) našli způsob, jak otevřít dveře sklípku Liberečanům a 10 let prázdný prostor opět proměnit v příjemnou restauraci k posezení u piva. Princip, kdy městský majetek společně s městem opraví soukromý investor a stará se o jeho chod. Stará se o to, aby majetek zpět vydělával investované peníze, aby do restaurace chodili lidé rádi a často.

    Když sedíte u dobře chlazeného a ošetřovaného piva, základní kámen je skoro přímo za oltářem piva, za žlutými pivními tanky. Je na něm letopočet 1888. Radnice byla dostavena roku1893 dle návrhu známého německého architekta Franze von Neumanna. Je postavena ve stylu zaalpské novorenesance. Celá je velmi důmyslně vystavěna a její vnitřní, technická krása je přinejmenším stejná, ne-li větší, jako krása vnější. Jako jemné fasády, jako zdobné interiéry. Od základů po špičku věže je radnice větrána chytrým systémem vzduchových kanálů. Z nich je potom v létě chlazena čerstvým vzduchem a v zimě odizolována od chladu. Restaurátoři se i tyto principy snažili obnovit a zachovat.

  • Stodola v Benešově

    • Bydlení
    • Industriál/Průmysl
    • Interiér
    • Rekonstrukce
    • Soutěž
    • Venkov

    Nádherné výhledy nad dramatickým údolím řeky Jizery v obci Benešov u Semil.

    Svažitý pozemek situovaný na jih se zahradou se vzrostlými stromy, kterou nemá jen tak někdo. Nehnutá stodola z roku 1947 na hlubokém kamenném věnci. Nádherný mansardový krov s ležatou stolicí – hřeben je výšce deseti metrů! A jak bude fungovat tenhle probuzený dům? Na jihu má vlastně čtyři patra a je velmi otevřený. Dole garáž a letní kuchyň, o patro výš tělocvična pro jogíny nebo snad koncertní pódium a hlavně jakýsi zastřešený dvůr, k němu dílna tak akorát a prádelna. Ze dvora vedou schody nahoru a tam to je! Zvýšené zápraží na dřevěném roštu, na nějž od západu proudí sluneční svit velkým otvorem ve střeše. Nádherné večery, třeba tady. Nebo venku na terase u kamínek letní kuchyně. Nebo na oplocené zahrádce s ovocnými stromy, dalo by se sedět a pozorovat hladinu rybníčku. Zpátky na zápraží, můžeme vstoupit do podélné chodby s odkládací skříní a lavicí, spižírnou a toaletou a pokračovat dál jižním směrem do obytné haly. Plápolá tu oheň rodinného krbu a zahřívá rozlehlou místnost s výhledem na nedaleký Skuhrov, Vrchy, Stránsko a Kamenec. Velkorysá kuchyň se starožitnou jídelnou jsou připraveny posloužit i těm nejnáročnějším hostům a volné lůžko by se zde zajisté také našlo. Ale to až o patro výš nad pokojem pána a paní domu, kde nachází své milované útočiště s veškerým příslušenstvím.

  • Vault 42

    • Historický kontext
    • Interiér
    • Město
    • Rekonstrukce
    • Soutěž
    • Urbanismus
    • Veřejný prostor

    Prostor je součástí klasicistní vojenské pekárny v centru Olomouce, postavené v 17. a 18. století jako součást městského opevnění.

    Půdorys podkovy, na kterém dům stojí, připomíná bastion a jasně odkazuje k vojenské architektuře tehdejší doby. Cílem konverze bylo vytvoření prostoru pro coworking. K tomu byla vymezená rohová část domu v přízemí a v prvním patře. Kvalita prostoru spočívala zejména v klasicistním tvarosloví stěn a klenutých stropů. Celý návrh se odvíjel od jasně definovaného záměru. Na rozdíl od klasické kanceláře je coworking prostorem užívaným lidmi, z nichž každý pracuje odlišně. Proto bylo nutné jasně definovat požadavky na každou místnost a umožnit dostatečnou variabilitu činností.

    V materiálovém řešení prostoru dominuje cihla. Původní opadávající omítky byly odstraněny a obnažené zdivo bylo opatřené bílým nátěrem anebo ponechané v původním stavu. Cihla dominuje i podlahám, či nové stěně ve vstupní hale, kde je však použita v atypickém, novodobém kladu. Nové interiérové prvky jsou vyrobeny z lehkých konstrukcí z ocelových jeklů nebo z betonu. Pro výhodné akustické vlastnosti byly použité panely z akustické AM pěny. Jejich barevná struktura vizuálně doplňuje jinak těžké a solidní hlavní materiály.

  • Vila Osek

    • Bydlení
    • Interiér
    • Město
    • Novostavba
    • Urbanismus

    Jak vlakvedoucí
    soupravou se prodíráš
    krajinou jí krájíš.

  • Zubaři Nad Mlýnem

    • Historický kontext
    • Interiér
    • Město
    • Novostavba
    • Soutěž
    • Urbanismus
    • Veřejný prostor

    Zubní klinika jako bílá moderní továrna na břehu dožívajícího jádra města. Jeho uspořádání se rozpadá z celistvé, blokové zástavby ve strukturu solitérních velkorysých předválečných vil a samostatně stojících vysokých činžovních domů s vlastními dvorky a zahradami.

    Jeden dům, dvě ulice s různými úrovněmi. Svým podstavcovým charakterem nabídl pozemek mimoděk pozici pro novou lokální dominantu. Může ze své nové terasy zářit čerstvostí a stát se pokorným symbolem stavebního rozednění celé čtvrti.
    Od severu k městu je dům silný a solidní. Na jihu domácký a skromný. Uvnitř rozmanitý a funkční. Jednoduché provozní schéma dvou osových chodeb v ortogonálním kříži umožňuje přirozenou vnitřní cirkulaci. Zelené atrium s otevřeným schodištěm propojuje obě podlaží do přehledného celku.
    Jako by sedlová střecha kliniky pod sebou ukrývala malé město. Ordinace tu jak domy stojí sólo, nebo ve shlucích vedle sebe. V několika z nich jsou ordinace, v jiném laboratoř, v dalším rentgen, denní místnost lékařů nebo kabinet přednosty. Mezi domy vedou pěší ulice, široké tak akorát pro dva. Každá z nich někam míří. Končí vysokým oknem s výhledem na zámeček na severu, výstupem na dřevěnou terasu, vysunutou nad křovinatý betonový břeh nebo nás zavede do skromné slunné zahrádky na jižní straně.

  • Domy v mlze

    • Interiér
    • Novostavba
    • Soutěž
    • Urbanismus
    • Venkov

    Někde na severu, pod Jestřebími horami leží Rtyně v Pdkrkonoší.

    Od 16. století tu nad střechy chalup ční dřevěná starobylá zvonice. Daleko dřív si tudy však nivami koryto vymlel dravý potok Rtyňka. Jeho břehy dnes lemují nevelké zahrady s tu a tam typicky krkonošskými domky. Někam sem, mezi vodu a pulsující proud automobilů Úpické silnice, jsme položili nové kameny Domů v mlze. Postavit dva malé domy pro dva dobré přátele. Ustoupit potoku tak akorát a ubránit klid již odsud zmizelé chalupy před vlnami hluku. Ukrást si podkrkonošství teď. Tak se zrodil nápad těžké zdi se dvěma střídmými sochami žití za ní.

    Přáli jsme si vyzdít obyčejné tvarosloví rukama z betonových tvárnic a ty pak jen na bílo natřít. Do polí na jih dát domům velká okna. Každý den se svou zahradou. Každý den o trochu jiný výhled na smrčí Krákorky.

    Projekt vychází z konceptu kamenů či skalisek, které leží v mlze a vystupují z ní. Zmíněnými kameny či skalisky jsou domy, mlhou konstrukce, jež je měla propojovat a nacházet se nad společným prostorem. Ze stavby mlhy nakonec sešlo. V podkrkonošské Rtyni ale přesto vznikly objekty, které ukazují, jak by se mohlo v podobných oblastech v budoucnu také stavět.

  • Kovárna Strahov

    • Bydlení
    • Historický kontext
    • Interiér
    • Město
    • Rekonstrukce
    • Soutěž
    • Veřejný prostor

    Strahovská kovárna je usazena jako první objekt po pravé straně při vstupu branou do Strahovského nádvoří. Skromnost fasád řešené stavby i sousedních objektů dává celé linii dojem klidu a akcentuje zdobenou bránu se sochou zakladatele řádu premonstrátů svatého Norberta a také kostel svatého Rocha naproti kovárně.

    Cílem rekonstrukce bylo vdechnout objektu nový život oprášením historické náplně, očištěním celé stavby od nepatřičných nánosů z minulých let a také znovudoplněním vhodných prvků a principů, kterými se kovárna dříve pyšnila.

    Původní dispoziční členění domu se až v překvapivé míře dochovalo a nebylo nutné ani žádoucí do něj provádět nepřiměřené zásahy.

    Stavba získala nový památkářský rozměr i ve svém průběhu, kdy byl objeven malý klenutý sklep, jehož původ sahá až do období gotiky.

    Důležitou roli při opravě kulturní památky sehrál výběr materiálů. Důraz byl po konzultaci s památkáři kladen na zachování maximálního možného množství hodnotných konstrukcí a jejich povrchových úprav, které jsou v návrhu podpořeny použitím tradičních, historicky používaných, materiálů. Výsledkem projevené úcty ke stávajícím konstrukcím a tradičním postupům je neopakovatelná „vůně staré stavby“, skoro jako by rekonstrukce ani neproběhla.

  • Daliborova lavička

    • Industriál/Průmysl
    • Město
    • Soutěž
    • Urbanismus
    • Veřejný prostor

    Hnacím motorem tohoto projektu i realizace je myšlenka starat se dlouhodobě o své okolí.
    Je to péče o ulici a veřejný prostor, ve kterém žijeme, včetně nové zeleně. Klient nás oslovil s požadavkem vytvořit před jeho domem místo, které by fungovalo pro krátké setkání s kolemjdoucími a kamarády.

    Jedná se obyčejnou ulici v Praze v zástavbě vil a řadových domů z konce 30. let. 20. století – ulice se stromořadím a prostředím, jaké znáte z rodinných a vilových domů.

    Navrhli jsme tyčovou ocelovou konstrukci složenou z jednotlivých ocelových dílů. Všechny tyče jsou spojeny na vložený čep s aretačním šroubem (možnost dotahovat spoje a reagovat na růst popínavé zeleně). Konstrukce sedáků je uložena na kloubových otočných spojích, které umožňují na zimu lavičku sklopit a nechat prostorově působit pouze konstrukci se zelení. Lavička je tvořena dvěma naproti sobě umístěnými sedáky, opěrák je pouze při jedné straně. Tímto jsme vytvořili dva módy posezení, které jsou v zádech a baldachýnu korunovány větvemi, zelení a květy vistárie.

  • Pražská kancelář

    • Interiér
    • Město
    • Rekonstrukce
    • Autor: Studio Raketoplán, s.r.o. - Pavel Nalezený, Radek Vaňáč
    • Tým: Adam Bažant, Jana Císařová, Zuzana Ficalová, Jan Holub, Samuel Nekola, Honza Kysilka, Mikuláš Valdman, Tadeáš Pech
    • Lokalita: Praha – Hostivař
    • Stavba: 2015 - 2018
    • Řešená plocha: 745 m²
    • Fotografie: Lukáš Pelech

    Nové kanceláře rodinné firmy jsme vestavěli do dvojdomu z konce 40. let minulého století. Navzdory době rudého temna je dům nositelem charakteru a stavitelského umu mladého Československa. Mezi nesporné kvality stavby patří umírněnost jejího výrazu a jednoduchost kompozice základních hmot.

    Původně byl dům zapuštěn do terénu a stál spolu se svým dvojčetem volně na pozemku. V letech 2000-2002 se však dům dočkal rozsáhlé rekonstrukce. Hmotě přidala novou podzemní podnož z jižní a západní strany a pocitově ji od silnice vyvýšila. Vertikalita objektu, do nějž jednotlivá podlaží propisují svou hierarchii, se tímto krokem ještě umocnila.

    Do domu vstupujeme z ulice brankou či vjezdovou bránou pro automobily. Za zdí odpočívá malý dvorek, ke kterému přimyká přijímací podlaží. Nový přístup do něj přináší možnost organizovat návštěvy. Jednoduchým způsobem tak šéf kanceláře může ovlivnit, jak a zda se které návštěvy potkají či uvidí. Příjímací kancelář se zázemím se sluní za prosklenou stěnou, o něco výš je pánský salón a vyhřátá cesta vzhůru.

    Venku zve schodiště ze dvorku dál na úroveň 1.NP. A nahoře už vítá porostlá markýza nad hlavním vstupem do kanceláře. Skrze kuchyň lze projít do salónu s francouzským oknem nebo jen pokračovat dále do dominantního pracovního prostoru. Kuchyně slouží vlastně jako filtr pro organizaci toku návštěv. Obnoven byl vnitřní vstup do zahrady, který je napojen na provoz 1.NP. Na hlavní místnost navazuje schodiště do 2.NP a master office. Kancelář šéfa je autonomní jednotkou s malým sofa pro návštěvy, velkorysými prvky interiéru pro jednání a práci.

    Důležitou roli pro nás hrál přírodní původ použitých materiálů. Dobrá orientace domu východ-jih-západ dává všem místnostem v domě možnost užít si přímého slunečního svitu.

  • Dům na Labi

    • Bydlení
    • Rekonstrukce
    • Venkov
    • Autor: Studio Raketoplán, s.r.o. - Pavel Nalezený, Radek Vaňáč
    • Tým: Adam Šustek, Jan Holub, Samuel Nekola, Šimon Marek, Zeus
    • Lokalita: Malá Skála, okr. Jablonec nad Nisou
    • Stavba: 11/2015 - 9/2016
    • Dodavatel: 1ku1 s.r.o.
    • Fotografie: Lukáš Pelech
    • Řešená plocha: 301 m²

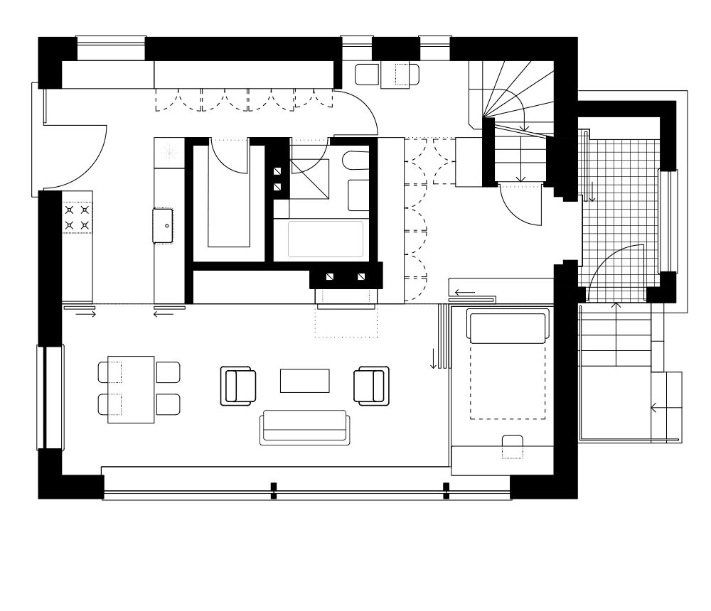
    Svěží vzduch od řeky dole, slunce po celý den, výhled na Vranovský hřeben s Pantheonem a Suché skály, výhled do dáli. To vše má malá maloskalská osada Labe. Pozemek s dvoupodlažním podsklepeným domem, který tu vlastníma rukama v roce 1961 postavil místní zedník, pan Stránský. Mladý a dobrý dům, znamenitě umístěný na svém pozemku. Jen pár let čekal na nový rozbřesk.  K domu se návštěvník blíží jako k hradu, který na své kamenné jizerské podnoži rozjímá nad údolím. Chytře vysazená zeleň poskytuje samotnému domu soukromí.

    Tyto původní, kvalitní poměry jsme se rozhodli zachovat a věnovat se především úpravám bezprostřednímu okolí stavby a jejímu interiéru. Dům potřeboval uvnitř nový impuls. Nahodit srdce, aby vydrželo a pumpovalo dlouhý spokojený proud života jeho nových nájemníků. Bijící sval se tak propisuje do všech podlaží. Navenek nejvýrazněji na jižní straně pásovým oknem obytné haly.

    Po příchodu k domu je zachován hlavní vstup. Za skříněmi menší haly se ukrývá obchozí  box s koupelnou, spíží uvnitř a kuchyní, stěnou obývacího pokoje a knihovnou vně. Box slouží jako ostrov, jehož je možné se dotknout systémem posuvných stěn a tím libovolně uzavírat a spojovat místnosti.

    Ze vstupní haly stoupá původní schodiště do 2.NP.  Podlaží je děleno centrální obytnou chodbou na severní část rodičovskou a jižní dětskou. V suterénu domu se nachází celá servisně-podpůrná část.

    Jih je několika prvky interiéru orientován do obývacího pokoje a jídelny. Kuchyně je průchozí a výstup ven je zároveň místo nově vybudovaného vstupu vstříc západní zahradě i krajině před otevřenou terasou.

  • Ulice Želetavská

    • Město
    • Novostavba
    • Rekonstrukce
    • Urbanismus
    • Veřejný prostor
    • Autor: Studio Raketoplán, s.r.o. - Pavel Nalezený, Radek Vaňáč
    • Tým: Jana Císařová, Samuel Nekola, Michael Švec, Daniel Volek, Ondřej Kuptík, Honza Kysilka
    • Lokalita: Praha – Michle
    • Stavba: 2017 - 2020
    • Řešená plocha: 5 790 m²
    • Fotografie: Petr Polák

    Převážně pěší bulvár se proplétá mezi patami nových výškových budov pražské Michle. Návrh na jeho zobytnění cílil po jednoduchém výrazu při podržení vybraných pojmenovaných kvalit.

    Za pomocný nástroj jsme si vybrali pomyslný rastr 6×6 m a jednotlivé toky pohybu člověka a vozidel. Pracovali jsme s prvky, které do ulice přišly s jednotlivými budovami v průběhu posledních 15 let (piazzetta, stromořadí, schodiště, parkoviště, vjezd do garáže, mobiliář, osvětlení apod.)

    Konverze veřejného prostoru a jeho prvků byla vedena myšlenkami na tvorbu identity místa
    a lepší definici potřebné funkce či podpory stávající funkce v něm.
    Konkrétním příkladem je vzrostlá zeleň, členění fasád nebo kamení chodníku. Posílili jsme pozici dobrých materiálů v lokalitě jejich opětovným použitím na pěších i pojezdových plochách a schodech.

    Pokud se lidé dovedou identifikovat s charakterem veřejného prostoru, vznikne živoucí místo. Přítomní se postupně naučí prostor používat a žít v něm.

    Ráz pražské mozaiky v pravidelném rastru jsme v návrhu podrželi pro všechny pěší povrchy. Při přechodu pěší oblasti (chodníky, promenády) na zklidněnou část silnice byla použita kombinace formátu kostky a hrubosti jejího povrchu. Takto kombinace svou strukturou poukazuje na dvě základní skutečnosti:
    1) chodec v této části silnice bude mít důležitější pozici než automobil
    2) držíme uzdu použitých textur a materiálů

    Dvojí použití materiálů dělí pojezdové povrchy na dominantní a tišší část. Zklidněná část je frázována žulovou dlažbou a klasická živičným povrchem. Obruby a bordury jsou kamenné, případně v místě vedení osob se sníženou schopností pohybu či orientace pomocí betonových typových doplňků.

  • Stodola na České Sibiři

    • Bydlení
    • Interiér
    • Rekonstrukce
    • Venkov
    • Autor: Studio Raketoplán, s.r.o. - Pavel Nalezený, Radek Vaňáč
    • Tým: Jan Holub, Sam Nekola, Adam Šustek, Éric Bourdel, Michael Švec
    • Lokalita: Okres Příbram, Česká Sibiř
    • Stavba: 5/2015 - 4/2016
    • Fotografie: Lukáš Pelech
    • Řešená plocha: 145 m²

    Malé sibiřské okrouhlici vévodí náves s hasičárnou. Pozemky gruntů se odsud paprskovitě rozbíhají do zvlněného terénu, kudy vede poutní cesta. Místo upravované usedlosti patří k nejstarším. Jeho hlavním domem je podlouhlá roubená chalupa z 18.století. Podél letitého stavení stojí původní zděná stáj.

    Odstup mezi dvěma paralelními stavbami tvoří jakousi venkovskou ulici, kudy dříve projížděl povoz. Na koni dál na východ touto ulicí stojí kamenná stodola, která se po rekonstrukci stala základnou pro současný venkovský život měšťanské rodiny. Letopočet na jižním štítu prozradil, že byla postavena v roce 1882.  V minulosti sloužila k mnoha různým účelům, které v ní zanechaly stopy.

    Návrh se snažil oprášit a náležitě vystavit všechny silné stávající prvky, hledal novou vesnickostfolklór. Přízemí patří především společnému životu rodiny. Na jeho jižním konci je malířský ateliér s velkým oknem vyhlížejícím do Černého lesa České Sibiře. Zatímco vikýře vycházejí z tradičních stodolových vhozů na seno, ateliérové okno nad galerií cituje českou modernu. Galerie při severním štítu slouží jako plíce domu. Skrze velký světlík se mezi latě lávky spouští krajina a světlo. Přes lávku vejdem do podkrovní haly s vikýřovými okny nasměrovanými do dvora. Z široké chodby lze zaútočit do dvou ložnic nad zahradou a většího pánského pokoje ve štítu nad ateliérem.
    Použitím autentických materiálů ctí stodola svůj venkovský původ.

  • Usedlost Rosice

    • Bydlení
    • Interiér
    • Rekonstrukce
    • Venkov
    • Autor: Studio Raketoplán, s.r.o. - Pavel Nalezený, Radek Vaňáč
    • Tým: Lukáš Bartheldi, Ondřej Kuptík, Nikola Macháčová, Jana Císařová, Tadeáš Pech, Mikuláš Valdman, Marek Wagner, Krystýna Mocová, Adela Kridlová, Lucie Dokulil
    • Lokalita: Rosice na Labem
    • Stavba: 2024
    • Řešená plocha: 632 m²

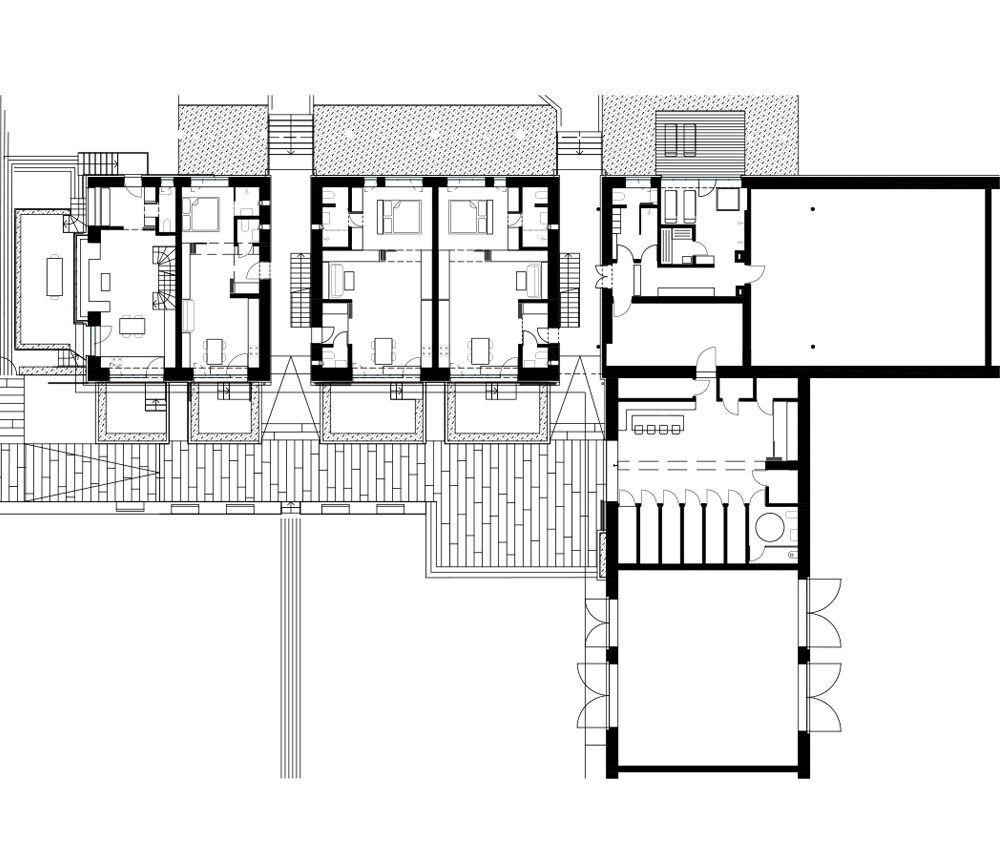
    Usedlost se od města obrací k řece a polím. Přes ovocné stromy v zahradě vyhlíží na jihozápad do Zákoutí. Ve válce poničen, po válce opraven. Do polí, směrem na severozápad, bylo v době socialismu k původnímu hospodářskému dvoru přistavěno průmyslové křídlo. Jeho téměř 30 m dlouhá hmota sleduje šířku i hřeben střechy staré usedlosti. Ocelový skelet zastřešuje vysoký krov s dřevěnou ležatou stolicí. Minulost tu zanechala prázdný prostor, kam postavíme 8 nových bytů. Tady by mohl být Váš nový domov.

    K domu se blížíme podél louky. Stojí za ovocným sadem. Na konci příjezdové cesty je točna a několik parkovacích míst. Statek ční nad zahradou. Dosedá dolů na terén anglickými dvorky, schodišti a různě odstupňovanými pobytovými plochami.

    Dlážděná přístupová cesta, lemovaná zídkou s lavičkami, ústí do pobytového schodiště na jejím konci. Dvůr se otáčí na jihozápad k řece. Přestavěnou stodolu zobytňují dva vysoké průrazy. Vznikají tak venkovní komunikace se schodišti přístupné z obou stran. Prostor je od řeky k louce nově průchozí. Hlavní vstupy do bytů vedou z těchto „pavlačí“. Podlaha z dřevěného roštu propouští světlo, vzduch a propojuje patra. Adaptovaná stavba zastřešuje nově 8 bytů. 6 bytů je startovacího charakteru. Podél západního štítu jsou 2 mezonetové byty pana domácího o vícero podlažích s prosklenou lucernou.

  • Litovelská 24

    • Bydlení
    • Město
    • Novostavba
    • Urbanismus
    • Veřejný prostor
    • Autor: Studio Raketoplán, s.r.o. - Pavel Nalezený, Radek Vaňáč
    • Tým: Ondřej Kuptík, Tadeáš Pech, Samuel Nekola, Jana Císařová, Michael Švec, Nikola Macháčová, Tereza Šírerová, Mikuláš Valdman, Michal Auxt
    • Lokalita: Olomouc
    • Stavba: 2019
    • Řešená plocha: 2602 m²

    Dům v Litovelské ulici se díky své výjimečné poloze na křižovatce historických stezek a významných městských tříd stává novou městskou branou.

    Vertikální kompozice domu je elegantní a lehká, tvořená posuvnými, poloprůhlednými prvky. Převýšená konstrukční výška parteru podtrhuje klasickou kamenickou bosáž odkazující k tradičním olomouckým měšťanským domům.
    Tak, jak je čten dům zvenčí, lze jej po výšce rozdělit do čtyř samostatných částí:

    1) kamenný obklad – veřejně přístupný parter
    2) “zubatka“ – zdravotnické a kancelářské prostory
    3) lehká kovová fasáda – bydlení
    4) podzemní část – garáže a technické zázemí domu

    Vstupní hala je ústředním prostorem a zároveň rozcestníkem celého domu. Jejím úkolem je pohodlně propojit severojižní pasáž, restauraci a nově vzniklou rajskou zahradu domu ve vnitrobloku.
    Nadzemní podlaží budovy náleží zdravotnímu provozu. Zatímco ve východní části disposice probíhá kancelářský cvrkot, v části západní jsou umístěny byty, které jsou rozvrženy i do zbylých podlaží.

    Návrh se snaží použít materiály současné nebo nadčasové. Příkladem je zahrada ve vnitrobloku, která myšlenkově navazuje na nadčasovou představu o uzavřeném ráji, sakrálním prostoru. Jeho formy a hmoty zakotví v českoněmecké stavební tradici, typické pro starobylé město Olomouc.